Description
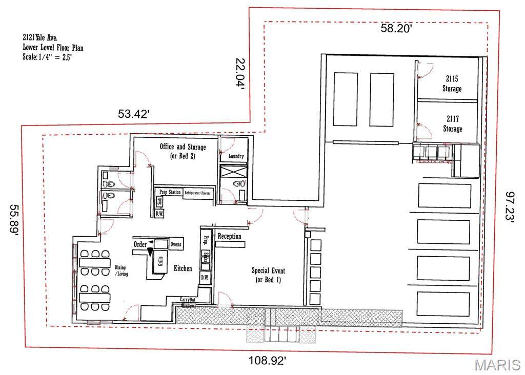
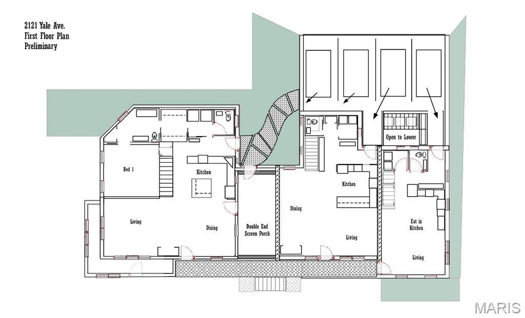
Final phase of the Versatile Earth Subdivision in Maplewood, MO fully approved for four unique units designed for energy efficiency, functional layouts, and minimal long-term maintenance. The project includes: 2115 Yale Ave: 2BR/1.5BA, loft, rooftop deck, upper covered parking plus garage & storage. 2117 Yale Ave: 3BR/2.5BA, open layout, loft, rooftop deck, upper covered parking plus garage & storage. 2119 Yale Ave: 3BR/2.5BA, screened porch entry, upper balcony, two covered parking spaces. Lower Level Unit: versatile space approved for commercial or residential use, including café/retail option or 2BR/2BA residential conversion, with four covered parking spaces. Design emphasizes natural light, sound control, functional space planning, and low exterior maintenance. All units feature individual outdoor living areas, front/back access, and shared garage for trash collection and additional storage. Prior phases of this subdivision have demonstrated strong demand and long-term tenancy, including a duplex built in 2019 with zero building maintenance issues and stable occupancy. Excavation costs can be reduced with access to free soil disposal at a nearby commercial property. This is a shovel-ready opportunity for a developer or investor to partner and complete the subdivision's largest and final phase. Zoned PUD
-
0BEDS
-
0.17ACRES
-
0BATHS
-
01/2 BATHS
School Information
Description
Final phase of the Versatile Earth Subdivision in Maplewood, MO fully approved for four unique units designed for energy efficiency, functional layouts, and minimal long-term maintenance. The project includes: 2115 Yale Ave: 2BR/1.5BA, loft, rooftop deck, upper covered parking plus garage & storage. 2117 Yale Ave: 3BR/2.5BA, open layout, loft, rooftop deck, upper covered parking plus garage & storage. 2119 Yale Ave: 3BR/2.5BA, screened porch entry, upper balcony, two covered parking spaces. Lower Level Unit: versatile space approved for commercial or residential use, including café/retail option or 2BR/2BA residential conversion, with four covered parking spaces. Design emphasizes natural light, sound control, functional space planning, and low exterior maintenance. All units feature individual outdoor living areas, front/back access, and shared garage for trash collection and additional storage. Prior phases of this subdivision have demonstrated strong demand and long-term tenancy, including a duplex built in 2019 with zero building maintenance issues and stable occupancy. Excavation costs can be reduced with access to free soil disposal at a nearby commercial property. This is a shovel-ready opportunity for a developer or investor to partner and complete the subdivision's largest and final phase. Zoned PUD
Listing information © 2026 Mid America Regional Information Systems, Inc. Information from third parties deemed reliable but not verified. Data last update 2026-02-12T23:39:02.74.
Friend Real Estate | eXp Realty: 573-207-6033

Listing provided courtesy of RE/MAX Results: 314-781-7777. Listing information © 2026 Mid America Regional Information Systems, Inc.